プロンポン駅徒歩約5分、55階建て新築コンドミ二アム「Noble Emmerse Phrom Phong」
プロンポン駅から近くスクンビット通り沿いに建築される新築プロジェクト「Noble Emmerse Phrom Phong」のご紹介です。近年のプロンポン、トンローエリアの新築物件価格から見ると割安で、購入者層は超富裕層に限られない現実的な価格となっております。

物件概要
| 物件名:Project |
Noble Emmerse Phrom Phong
|
| 所在地:Address | スクンビットソイ30 |
| 最寄り駅:Station | BTS プロンポン駅徒歩約5分 |
| 築年数:Built year | 2030年末予定 |
| 間取り:Plan | 1Bed room30-39㎡ 2Bed room61-72㎡ 3Bed room99㎡ 4Bed room131㎡
Penthouse 376-521㎡ |
| 価格:Price | 6,990,000Baht~ |
| 平均単価 | 平均267,000バーツ/sqm |
| 管理費/積立一時金 | 90バーツ/sqm(Common fee)/ 900バーツ/sqm(Sinking fee) |
| デベロッパー:Developer | Noble |
| 総階数、総戸数 Total floor,Total unit |
55階建て 358戸 |
| 想定利回りExpected yield | 約3.5% |
Noble Emmerse Phrom Phong物件紹介ページ
立地
プロンポン駅とトンロー駅の間にありプロンポン駅から徒歩約5分、スクンビットソイ30に建築されます。ソイ30の奥へ入らずスクンビット通り沿いに面するソイの入口となり駅からも近く良い立地です。
ソイ30は静かなソイで小規模なカフェや屋台もあり奥へ入ると戸建ても複数あります。戸建てには本物件の建築を反対するポスターが貼られてあるのが何か影響をもたらすか少し心配です。
ソイ30は高い建物がなくコンドミニアムもありません。隣のソイ28にThe Addressという約30階建てのコンドミニアムがありますがNoble Emmerse Phrom Phongは55階建てと倍近い高さになるのでソイ奥の建物へは日照の問題や景観は完成後に影響が出てくるかと思われます。


ショールーム写真、間取り
![]() |
![]() |
![]() |
![]() |
![]() |
![]() |
![]() |
![]() |
![]() |
![]() |
![]() |
![]() |
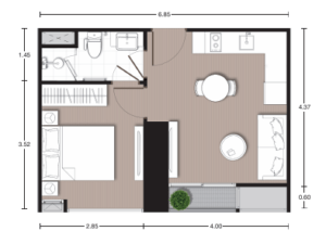
ショールームの写真は31㎡のものです。
キッチン台がL字になって下に洗濯機が収納できるようになっており作業スペースが設けられております。
本物件は1ベットルーム~4ベットルームあり間取りも9種類以上のタイプがあります。
ご予算、好みに合わせて好きな間取りを選ぶことが可能です。

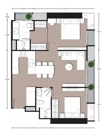
72㎡2ベットルーム
72㎡、2ベットルームの間取り図ですが玄関を開けてお部屋が全開に見える仕様ではないものもございます。

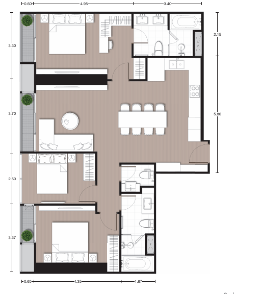
99㎡3ベットルーム
99㎡、3ベットルームになると3トイレ、2バスルームでバスタブが付いております。
特徴的な価格
昨今のプロンポン周辺の新築物件価格は㎡単価約40万バーツ、最低価格2千万バーツ前後からというものが多いのですがNoble Emmerse Phrom Phongでは最低価格699万バーツから、平均㎡単価は267,000バーツと非常に割安な価格となっております。
同エリアの昨今の新築価格が超富裕層にしか手の届かない、かなりの高額となっているので安く見えるというのもあります。
Noble社が発表している同エリアの新築物件と比較した㎡単価でも安さがアピールされております。

お勧めポイント
- どんどん希少となるプロンポン、トンロー駅近のスクンビット通り沿いという立地
- 55階建てとランドマーク的なコンドミニアムとなる
- 選べる間取りが多彩でコンパクトな間取りであれば1000万バーツ以下で購入可
お問い合わせお待ちしております。












